電話:0577-66996885
傳真:0577-66995778
手機:13353386068
Q Q:2219968630
網址:www.gzlczx.com
地址:浙江省永嘉縣甌北鎮三橋工業區
【單管不銹鋼液下排污泵YW型】產品特點:
1.采用獨特的單片或雙葉片葉輪結構,大大提高了污物通過能力,能有效的通過泵口徑的5倍纖維物質與直徑為泵口徑約50%的固體顆粒。
2.機械密封采用新型硬質耐腐的鈦化鎢材料,可使泵安全連續運行8000小時以上。
3.整體結構緊湊、體積小、噪聲小、節能效果顯著,檢修方便,無需建泵房,潛入水中即可工作,大大減少工程造價。
4、泵結構緊湊,體積小,移動方便,安裝簡單。
5、可配備液位自動控制柜,根據所需的液位變化,自動控制泵的起停,無需專人看管,使用極為方便。
6、泵為立式結構,工作時泵體浸在液體中因而很容易起動,不存在排氣抽空問題,同時具有無泄漏等特點,液下深度可達7米。
7、接軸結構先進可靠,泵與電機采用連軸器聯結,泵軸尺寸精密,保證了泵平穩運行,留有足夠的安全系數。
8、泵有單管安裝和雙管安裝兩種,支承件有圓盤和方盤安裝,適合不同需要。
【單管不銹鋼液下排污泵YW型】型號意義:
【單管不銹鋼液下排污泵YW型】性能型譜圖:
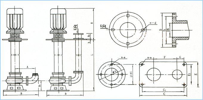
【單管不銹鋼液下排污泵YW型】安裝尺寸圖:
【YW型液下排污泵】產品用途:
YW型液下排污泵適用于化工、石油、制藥、采礦、造紙工業、水泥廠、煉鋼廠、電廠、煤加工工業,以及城市污水處理廠排水系統、市政工程、建筑工地等行業輸送帶顆粒的污水、污物,也可用于抽送清水及帶腐蝕性介質。
【YW型液下排污泵】結構圖:
|
|
1 |
電機 |
11 |
油室 |
|
2 |
聯軸器 |
12 |
機械密封 |
|
|
3 |
電機座 |
13 |
后蓋板 |
|
|
4 |
上軸承 |
14 |
鍵 |
|
|
5 |
上軸承座 |
15 |
葉輪螺母 |
|
|
6 |
安裝盤 |
16 |
葉輪 |
|
|
7 |
加長軸 |
17 |
密封環 |
|
|
8 |
支撐管 |
18 |
泵體 |
|
|
9 |
下軸承 |
19 |
出水管 |
|
|
10 |
上機械密封 |
20 |
底盤 |
【單管不銹鋼液下排污泵YW型】性能參數:
【單管不銹鋼液下排污泵YW型】產品概述:
YW型液下排污泵是在引進國外先進技術的基礎上,結合國內水泵的使用特點而研制成功的新一代泵類產品,具有節能效果顯著、防纏繞、無堵塞、自動安裝和自動控制等特點。在排送固體顆粒和長纖維垃圾方面,具有獨果。
該系列泵采用獨特葉輪結構和新型機械密封,能有效地輸送含有固體物和長纖維。葉輪與傳統葉輪相比,該泵葉輪采用單流道或雙流道形式,它類似于一截面大小相同的彎管,具有非常好的過流性,配以合理的蝸室,使得該泵具有效率高、葉輪經動靜平衡試驗,使泵在運行中無振動。
【單管不銹鋼液下排污泵YW型】注意事項:
1.泵使用前應仔細檢査泵和電機有無損傷.檢査緊固件緊固情況。
2.盤動泵檢査有無磨擦聲.同時檢査泵軸與電機軸同心度.兩聯軸節外圓偏差數不超過0.5mm
3.接泵出液口之管路.應另設支架.不允許將其重量加于泵體上。
4.水泵在無特殊情況必須配備全自動水泵控制柜.切勿直接掛電網或使用閘刀開關來接通電流.確保水泵正常運行.
5.不得將水泵長期處于低揚程狀態下運行(一般使用揚程不得低于額定揚程的60%).*好能控制在建議使用揚程范圍以內.以防水泵因超載燒壞電機
【單管不銹鋼液下排污泵YW型】維護保養:
1.水泵應有專人管理與使用.并定期檢査水泵的電路和水泵工作是否正常。
2.每次使用特別是用于較稠較粘的漿液后.應將水泵放在消水中運轉數分鐘.防止泵內留下沉積物.保證水泵的淸潔。
3.在常規狀態下.泵每使用300-500小時后應加注或更換油室中機油(10-30#機油).使機械密封保持良好的潤滑狀態.提高機械密封的使用壽命。
4.葉輪和泵體之間的密封環具有密封功能.如密封環損壞將直接影響泵的性能.必要時應更換。
【單管不銹鋼液下排污泵YW型】使用條件:
1、泵的使用環境溫度≤40℃,濕度≤95%;海拔高度≤1000米。
2、介質溫度不超過60℃,介質重度為1~1.3kg/dm3。
3、鑄鐵材質的使用范圍這PH5~9。
4、不銹鋼材質可使用一般腐蝕性介質。
5、使用環境海拔高度不超過1000米,超過以上條件時,應在訂貨時提出,以便為您提供更可靠的產品。
注:用戶如有特殊的溫度、介質等要求,請在訂貨時注明輸送介質的詳細情況,以便本單位提供更為可靠之產品。

